
- Properties
- Meet our team
-
Communities
- Fort Lauderdale
- Miami
- Boca Raton and Delray Beach
- Golden Beach: A Secluded Coastal Gem with Unmatched Luxury
- The Palm Beaches
- Commercial Real Estate
- Croissant Park
- Tarpon River
- Rio Vista
- Las Olas Isles
- Victoria Park
- Riverside Park
- Sailboat Bend
- Idlewyld
- Harbour Inlet and Harbour Isles
- Edgewood
- River Oaks
- Coral Ridge
- Market Report
- Home Value
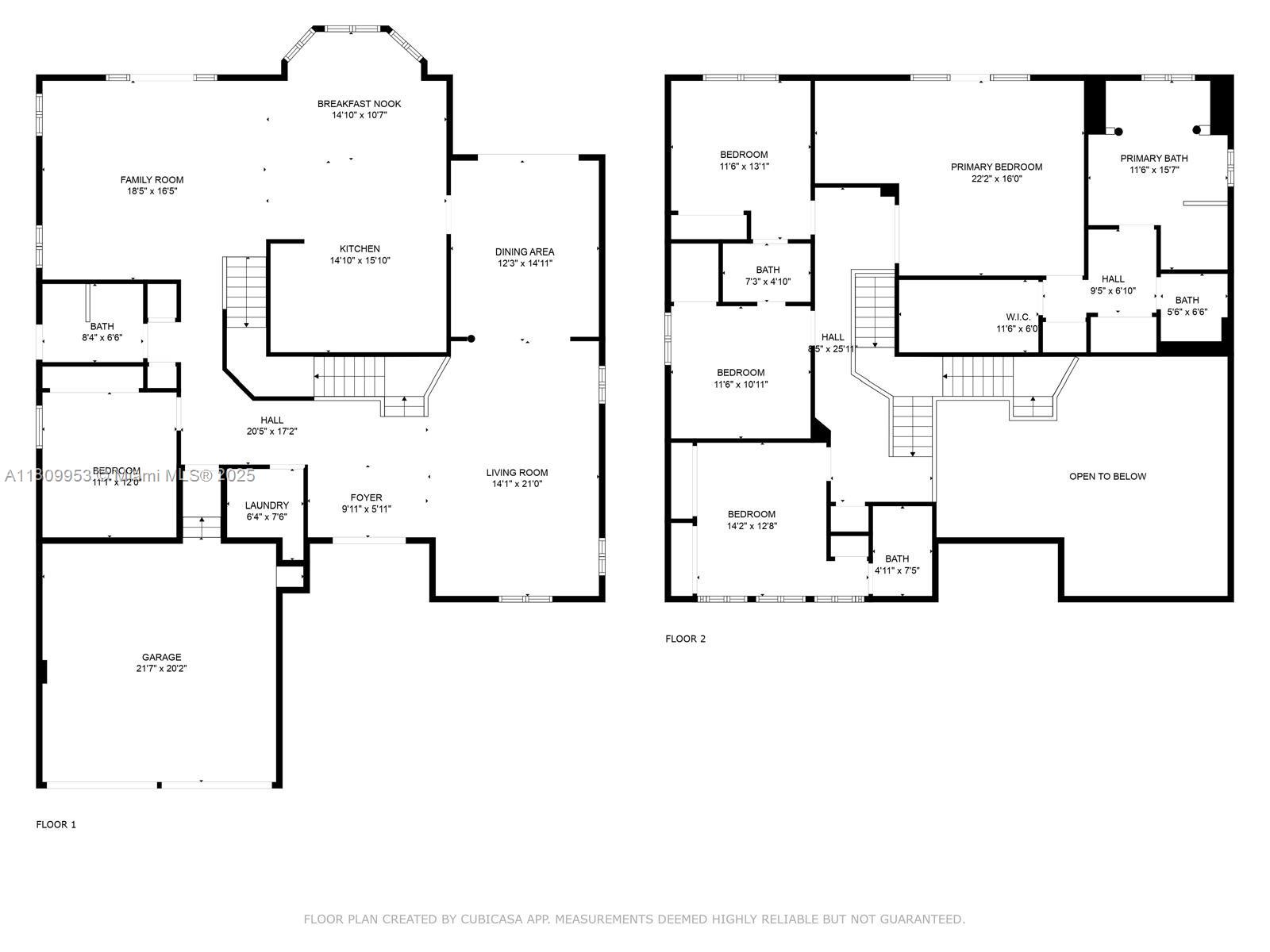
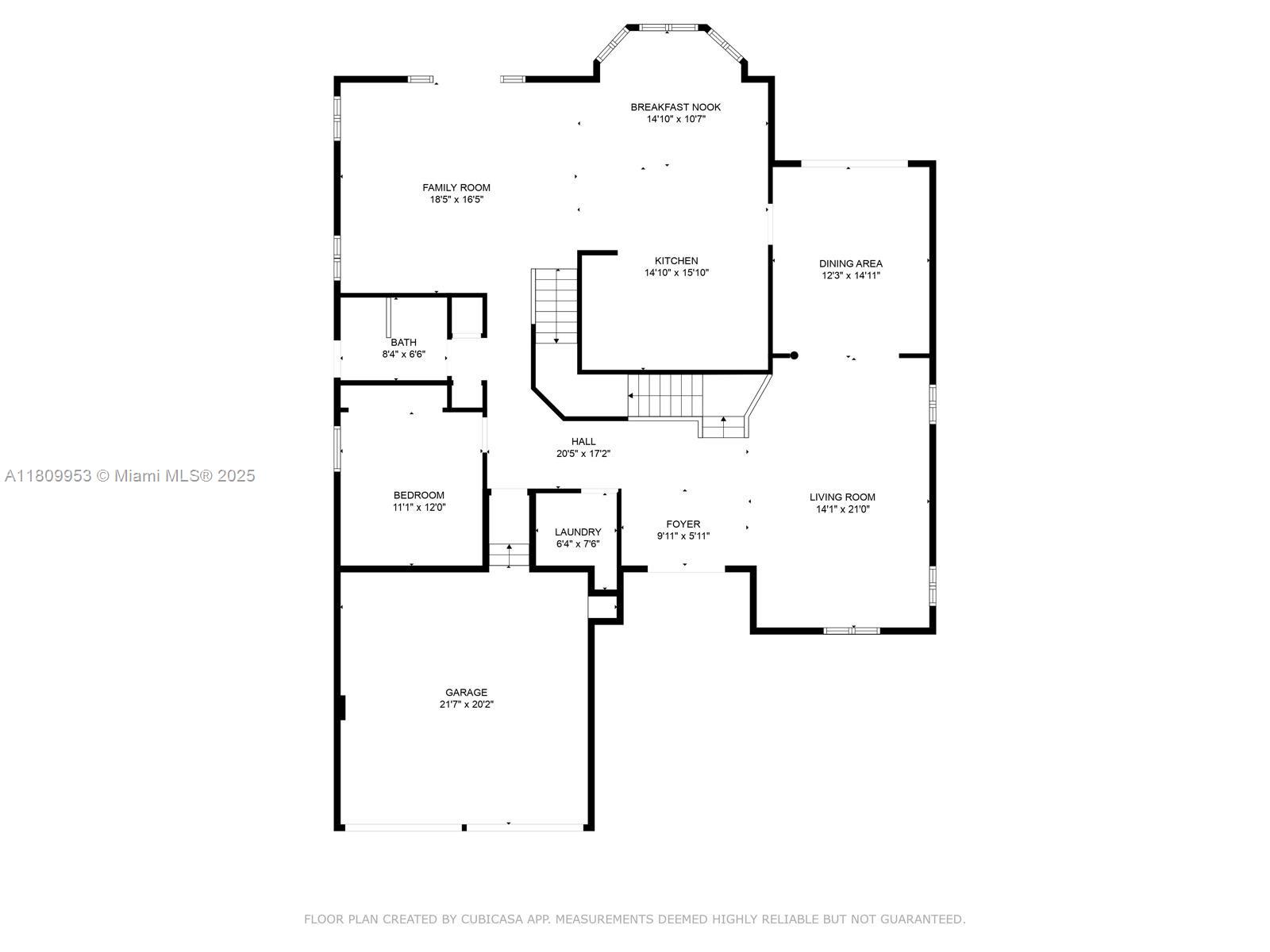
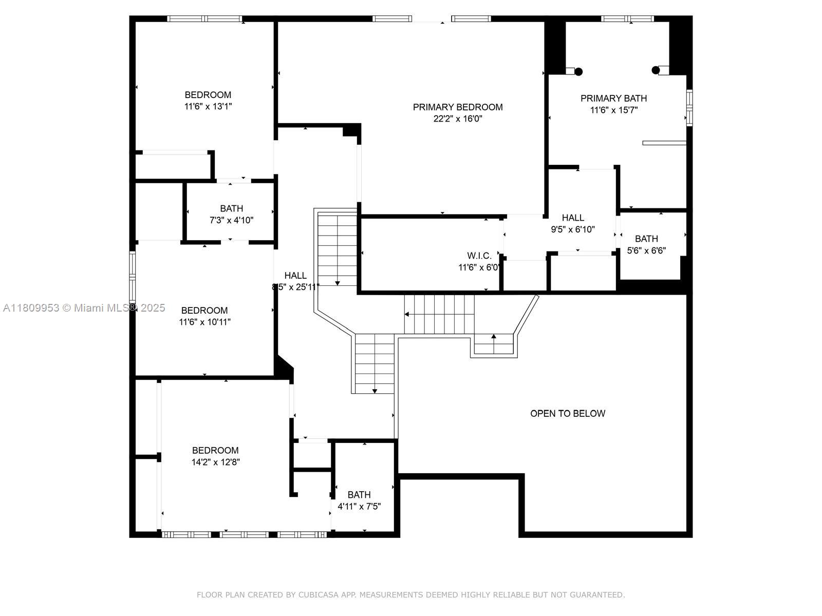
Detached, TwoStory
7753 SW 193rd St
Cutler Bay , FL 33157
MLS#: A11809953
$1,177,777

Property
Beds
5
Full Baths
4
1/2 Baths
None
Year Built
2006
Sq.Footage
3,945
Features & Highlights Elegant Milan Model: Showcasing a dual staircase and high ceilings, this model offers a grand entrance and spacious living areas. Gourmet Kitchen: Equipped with a central island, ideal for culinary enthusiasts and entertaining guests. Master Suite: Features a private balcony, providing a serene space to unwind. Flooring: Marble floors throughout the home add a touch of luxury. Located close to the community clubhouse, offering easy access to recreational facilities. Cutler Cay is a prestigious gated community in Cutler Bay, offering residents amenities such as a clubhouse, fitness center, pool, tennis courts, and 24/7 security. The neighborhood is known for its well-maintained homes and family-friendly environment.
Features & Amenities
Interior
-
Other Interior Features
Eat-in Kitchen, Master Downstairs
-
Total Bedrooms
5
-
Bathrooms
4
-
Cooling YN
YES
-
Cooling
Central Air, Ceiling Fan(s)
-
Heating YN
YES
-
Heating
Central
-
Pet friendly
Yes
Exterior
-
Garage
Yes
-
Garage spaces
2
-
Construction Materials
Block
-
Other Exterior Features
Balcony
-
Parking
Driveway, On Street
-
Patio and Porch Features
Screened
-
Pool
Yes
-
Pool Features
None, Community
-
View
Garden
Area & Lot
-
Property Type
Residential
-
Property Sub Type
Single Family Residence
-
Architectural Style
Detached, TwoStory
Price
-
Sales Price
$1,177,777
-
Tax Amount
15843.0
-
Zoning
0100
-
Sq. Footage
3, 945
-
Price/SqFt
$298
HOA
-
Association
YES
-
Association Fee
$499
-
Association Fee Frequency
Monthly
-
Association Fee Includes
N/A
School District
-
Elementary School
N/A
-
Middle School
N/A
-
High School
N/A
Property Features
-
Stories
2
-
Senior Community YN
NO
-
Sewer
Public Sewer
-
Water Source
Public
Schedule a Showing
Showing scheduled successfully.
Mortgage calculator
Estimate your monthly mortgage payment, including the principal and interest, property taxes, and HOA. Adjust the values to generate a more accurate rate.
Your payment
Principal and Interest:
$
Property taxes:
$
HOA fees:
$
Total loan payment:
$
Total interest amount:
$
Location
County
Miami-Dade
Elementary School
Middle School
High School
Listing Courtesy of Craig Emmanuel , Commercial Rlty Advisors & Investment Grp LLC
RealHub Information is provided exclusively for consumers' personal, non-commercial use, and it may not be used for any purpose other than to identify prospective properties consumers may be interested in purchasing. All information deemed reliable but not guaranteed and should be independently verified. All properties are subject to prior sale, change or withdrawal. RealHub website owner shall not be responsible for any typographical errors, misinformation, misprints and shall be held totally harmless.

Realtor
JarrodGaylis
Call Jarrod today to schedule a private showing.

* Listings on this website come from the FMLS IDX Compilation and may be held by brokerage firms other than the owner of this website. The listing brokerage is identified in any listing details. Information is deemed reliable but is not guaranteed. If you believe any FMLS listing contains material that infringes your copyrighted work please click here to review our DMCA policy and learn how to submit a takedown request.© 2024 FMLS.
