
- Properties
- Meet our team
-
Communities
- Fort Lauderdale
- Miami
- Boca Raton and Delray Beach
- Golden Beach: A Secluded Coastal Gem with Unmatched Luxury
- The Palm Beaches
- Commercial Real Estate
- Croissant Park
- Tarpon River
- Rio Vista
- Las Olas Isles
- Victoria Park
- Riverside Park
- Sailboat Bend
- Idlewyld
- Harbour Inlet and Harbour Isles
- Edgewood
- River Oaks
- Coral Ridge
- Market Report
- Home Value
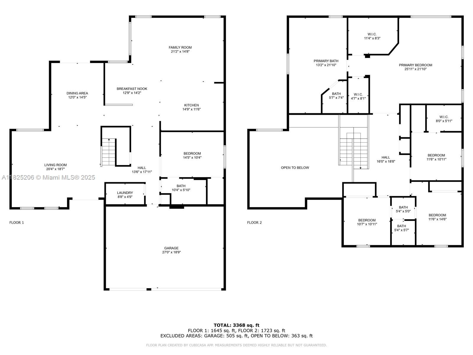
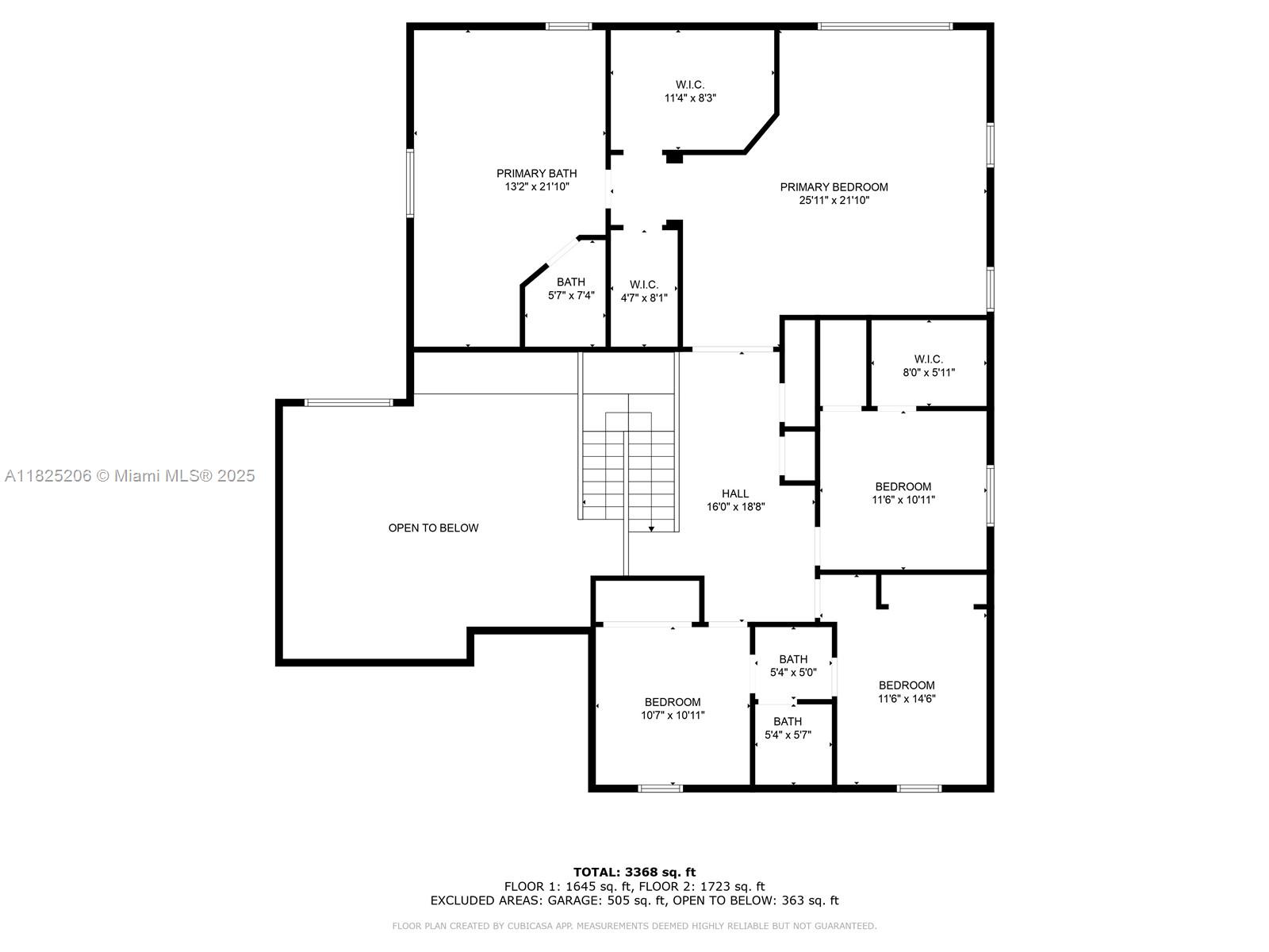
Property
Beds
5
Full Baths
4
1/2 Baths
None
Year Built
2000
Sq.Footage
3,565
Now offered at a Newly Improved Price this 2 story corner lot home features 5 spacious bedrooms, 4 full bathrooms, and a 3 car garage all nestled in the exclusive gated community of Spring Valley Estates. Enjoy a flexible layout with one bedroom downstairs great for guest or office space. Upstairs, the primary suite features an updated bath with Jacuzzi tub, dual sinks, separate shower, and his & hers walk-in closets. Two bedrooms share a jack-and-Jill bath, while another has a private bath. Step outside to your screened patio and pool plus hurricane shutters for peace of mind. Roof is original and some updates needed, perfect chance to make it your own.
Features & Amenities
Interior
-
Other Interior Features
Vaulted Ceiling(s), Walk-In Closet(s), Master Downstairs
-
Total Bedrooms
5
-
Bathrooms
4
-
Cooling YN
YES
-
Cooling
Central Air, Ceiling Fan(s)
-
Heating YN
YES
-
Heating
Central
-
Pet friendly
N/A
Exterior
-
Garage
Yes
-
Garage spaces
3
-
Construction Materials
Block
-
Parking
Covered, Driveway, Garage Door Opener
-
Patio and Porch Features
Patio, Porch
-
Pool
Yes
-
Pool Features
Fenced, Heated, Other, Community
-
View
None
Area & Lot
-
Property Type
Residential
-
Property Sub Type
Single Family Residence
-
Architectural Style
Detached, TwoStory
Price
-
Sales Price
$960,000
-
Tax Amount
10892.0
-
Zoning
(R-1B)
-
Sq. Footage
3, 565
-
Price/SqFt
$269
HOA
-
Association
YES
-
Association Fee
$131
-
Association Fee Frequency
Quarterly
-
Association Fee Includes
N/A
School District
-
Elementary School
Silver Palms
-
Middle School
New Renaissance
-
High School
Flanagan;Charls
Property Features
-
Stories
2
-
Senior Community YN
NO
-
Sewer
Public Sewer
-
Water Source
Public
Schedule a Showing
Showing scheduled successfully.
Mortgage calculator
Estimate your monthly mortgage payment, including the principal and interest, property taxes, and HOA. Adjust the values to generate a more accurate rate.
Your payment
Principal and Interest:
$
Property taxes:
$
HOA fees:
$
Total loan payment:
$
Total interest amount:
$
Location
County
Broward
Elementary School
Silver Palms
Middle School
New Renaissance
High School
Flanagan;Charls
Listing Courtesy of Tanya Culpepper , Premier Agent Realty
RealHub Information is provided exclusively for consumers' personal, non-commercial use, and it may not be used for any purpose other than to identify prospective properties consumers may be interested in purchasing. All information deemed reliable but not guaranteed and should be independently verified. All properties are subject to prior sale, change or withdrawal. RealHub website owner shall not be responsible for any typographical errors, misinformation, misprints and shall be held totally harmless.

Realtor
JarrodGaylis
Call Jarrod today to schedule a private showing.

* Listings on this website come from the FMLS IDX Compilation and may be held by brokerage firms other than the owner of this website. The listing brokerage is identified in any listing details. Information is deemed reliable but is not guaranteed. If you believe any FMLS listing contains material that infringes your copyrighted work please click here to review our DMCA policy and learn how to submit a takedown request.© 2024 FMLS.
