Features & Amenities

Interior

  • Other Interior Features

    Built-in Features, Pantry, Bar, Walk-In Closet(s), Master Downstairs

  • Total Bedrooms

    4

  • Bathrooms

    3

  • Cooling YN

    YES

  • Cooling

    Ceiling Fan(s), Electric

  • Heating YN

    YES

  • Heating

    Electric

  • Pet friendly

    N/A

Exterior

  • Garage

    Yes

  • Garage spaces

    2

  • Construction Materials

    Block

  • Parking

    Driveway, RV Access/Parking

  • Patio and Porch Features

    Deck, Porch

  • Pool

    Yes

  • Pool Features

    In Ground

  • Waterfront YN

    NO

  • View

    Garden, Pool

Area & Lot

  • Property Type

    Residential

  • Property Sub Type

    Single Family Residence

  • Architectural Style

    OneStory

Price

  • Sales Price

    $1,695,000

  • Tax Amount

    $6,916

  • Zoning

    2200

  • Sq. Footage

    1, 926

  • Price/SqFt

    $880

HOA

  • Association

    No

School District

  • Elementary School

    Coral Reef

  • Middle School

    Southwood

  • High School

    Miami Palmetto

Property Features

  • Stories

    1

  • Senior Community YN

    NO

  • Sewer

    Septic Tank

  • Water Source

    Public

Schedule a Showing

Showing scheduled successfully.

<
>
IN PERSON
VIA CHAT

What is 3 + 4 ?


Change time

Mortgage calculator

Estimate your monthly mortgage payment, including the principal and interest, property taxes, and HOA. Adjust the values to generate a more accurate rate.

Your payment

Principal and Interest:

$

Property taxes:

$

HOA fees:

$

Total loan payment:

$

Total interest amount:

$

Location

County

Miami-Dade

Elementary School

Coral Reef

Middle School

Southwood

High School

Miami Palmetto

Listing Courtesy of Lourdes Cuzan , Kerdyk Real Estate, Inc.

RealHub Information is provided exclusively for consumers' personal, non-commercial use, and it may not be used for any purpose other than to identify prospective properties consumers may be interested in purchasing. All information deemed reliable but not guaranteed and should be independently verified. All properties are subject to prior sale, change or withdrawal. RealHub website owner shall not be responsible for any typographical errors, misinformation, misprints and shall be held totally harmless.

Agent Jarrod Gaylis

Realtor

Jarrod Gaylis

Call Jarrod today to schedule a private showing.


* Listings on this website come from the FMLS IDX Compilation and may be held by brokerage firms other than the owner of this website. The listing brokerage is identified in any listing details. Information is deemed reliable but is not guaranteed. If you believe any FMLS listing contains material that infringes your copyrighted work please click here to review our DMCA policy and learn how to submit a takedown request.© 2024 FMLS.
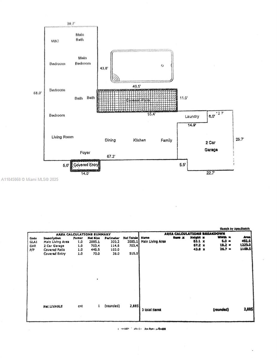
Expanded to 2,880 living sq ft with permits. Impact windows/doors. 2018 concrete roof tile. Exceptional 4/3 Palmetto Bay home designed for comfort, entertaining, and outdoor living. Ideally located near top-rated public/private schools, parks, shops, and bike paths in a quiet residential area. The spacious primary suite features his and hers walk-in closets, an updated in-suite bath with dual showers/sinks, and its own tankless water heater. The large kitchen boasts wood cabinetry, granite countertops, and an L-shaped counter with seating capacity for 4. Open living, dining, and family areas offer easy flow, with French doors throughout connecting indoor and outdoor spaces. Includes oversized 2-car garage, dedicated laundry room with cabinetry and utility sink.

6960 SW 148th Ter

Message successfully sent.

What would you like to know?

What is 3 + 4 ?

Related Properties

New on site 3 days ago
Well-maintained 4 bdrm/ 4 bath home in the unparalleled community of Mangowood in North Palmetto Bay. Charming front porch provides convenient covered entry. Open formal living/dining area. Eat-in kitchen with breakfast nook and a bay window overlooking the beautiful pool area connects to the family room. Tile and laminate flooring. Lovely primary suite with walk-in closets, marble primary bath, separate tub and shower. Spacious indoor laundry room w sink and cabinetry. Accordion hurricane shutters. Stamped concrete circular driveway. 2 car side entry garage. Fenced backyard with double gate and space for parking a boat. Screened pool and patio. A couple short blocks to Coral Reef Park complete with walking paths, youth sports, playground, community events and brand-new pickleball courts.
#A11980910

Palmetto Bay

8241 SW 146th St

4 Beds

4 Baths

2,858 Sq.Ft.

$1,450,000

MLS#: A11980910

New on site 4 days ago
Beautifully updated 4BD/3BA + office residence in the gated Flamingo Gardens community in Palmetto Bay. This open split floor plan home features volume ceilings, impact glass, marble floors, and spacious formal and casual living areas. The renovated kitchen offers an eat-in layout, pantry, and premium Sub-Zero and Garland appliances. French doors lead to a resort-style backyard with pool, expansive covered patio ideal for entertaining, and lush fenced landscaping. The primary suite features a dual-entry walk-in closet and a spa-style bath with dual sinks, separate tub and shower. Additional highlights include whole-house audio with speakers throughout, 3 A/C units, alarm system, epoxy-finished 2-car garage, gated side yard with room for boat storage, and lush 15,180 SF lot. Located in a coveted 44-home community close to top schools, parks, and major destinations, offering the perfect balance of privacy and convenience.
#A11976484

Palmetto Bay

16721 SW 86th Ct

4 Beds

3 Baths

3,190 Sq.Ft.

$1,725,000

MLS#: A11976484

New on site 4 days ago
Welcome to this Palmetto Bay residence located in the gated community of Flamingo Gardens, where elegance, comfort, and indoor-outdoor living come together beautifully. This canal front home welcomes you with lush tropical landscaping, a paver driveway, and classic Mediterranean architecture with a timeless tile roof. Inside, soaring ceilings and an open layout create a bright, airy atmosphere anchored by elegant columns and expansive living spaces designed for both entertaining and everyday living. 

This spacious 5BD/4BA home flows seamlessly together and features large windows and French doors that fill the home with natural light while offering views of the backyard oasis. The kitchen is well appointed with rich wood cabinetry, granite countertops, stainless steel appliances, and ample storage, making it a great place for gathering.

Step outside to your private backyard retreat featuring a large pool, expansive patio, and a covered terrace ideal for outdoor relaxing year round. Surrounded by mature landscaping and privacy hedges, the outdoor space offers the perfect setting for entertaining or enjoying peacefully.

With its high ceilings, elegant architectural details, and exceptional indoor outdoor flow, this property offers the perfect blend of style, comfort, and South Florida living. Located near top rated schools, parks, dining, and shopping, this home truly captures the lifestyle that makes Palmetto Bay one of Miami’s most desirable communities.
#A11980632

Palmetto Bay

16701 SW 84th Ct

5 Beds

4 Baths

3,550 Sq.Ft.

$1,669,000

MLS#: A11980632

Totally upgraded modern 4-bedroom, 3-bathroom one-story home located in the prestigious Palmetto Bay. Within walking distance to top-rated schools, beautiful parks, and historic sites, this home is perfect for families and friends to enjoy. Situated on a quiet dead-end street, the property offers extra tranquility and safety. No HOA. The home features a beautifully updated kitchen with brand-new stainless steel appliances and a stunning waterfall quartz island with plenty of seating, opening to a spacious family room and pool area—perfect for entertaining. The primary bedroom is spacious, featuring a large built-in walk-in closet and a luxurious bathroom with modern finishes and high-end fixtures. Enjoy a fenced backyard with an oversized covered terrace, ideal for outdoor living. Additional features include: Two new A/C units, Impact windows and doors, PVC plumbing (no cast iron concerns), move-in ready, and easy to show.
#A11979632

Palmetto Bay

7845 SW 179th Ter

4 Beds

3 Baths

2,812 Sq.Ft.

$1,545,000

MLS#: A11979632

Move-in ready, fabulous Flamingo Gardens cul-de-sac perfection! Located in the exclusive gated enclave of only 44 homes, this meticulously maintained 4BD/4BA plus home office was built in 2003 and sits at the end of a cul-de-sac on one of the largest lots in the community at over 24,000 SF! A long approach driveway leads to the home, offering both privacy and impressive curb appeal. Inside, soaring high-volume ceilings, an updated, oversized eat-in kitchen, and family room are the heart of the home, featuring a spacious layout with double islands, perfect for entertaining. Formal living and dining rooms, and a split bedroom floor plan, complete this modern, bright, spacious family home you’ve been looking for. Step outside to an oversized covered patio with outdoor kitchen, surrounded by lush, beautifully manicured gardens, ideal for enjoying South Florida's indoor/outdoor living year-round. The home also includes a large primary suite with two walk-in closets, a three-car garage, a laundry room, and a whole-house generator. Play in the cul-de-sac or hop on the bordering paths, steps away from Coral Reef Park, the Deering Estate, and top-rated public/private schools. Who is ready to call this peaceful, sought-after neighborhood, HOME?
#A11972973

Palmetto Bay

8561 SW 167th Ter

4 Beds

4 Baths

3,771 Sq.Ft.

$1,999,000

MLS#: A11972973

Located in North Palmetto Bay, just blocks from Pinecrest, this corner-lot residence sits on an expansive 26,000+ SF lot (two folios), offering exceptional space, privacy, and outdoor living. The home features 4 bedrooms plus a versatile room that can easily function as a 5th bedroom, home office, gym, or playroom, providing flexibility to suit a variety of lifestyles.  The oversized, sprawling backyard creates a true outdoor oasis, ideal for entertaining. Enjoy a covered terrace and pergola perfect for year-round gatherings, while the paved circular driveway provides ample parking.  Other features include a proper laundry room, barrel tile roof, partial impact windows/doors, and a partial garage/storage. Don’t miss this rare opportunity to own in one of Palmetto Bay’s most desirable pockets, prized for its proximity to top-rated public schools, parks, major roadways, and everyday conveniences. Actual sqft is 2646.
#A11977061

Palmetto Bay

7700 SW 139th Ter

4 Beds

3 Baths

2,646 Sq.Ft.

$1,500,000

MLS#: A11977061

Nearly 3,200 SF of living space in the heart of Palmetto Bay, set on a generously sized cul-de-sac lot, backed by a canal with open exposure and breathtaking sunset views every afternoon, this property offers privacy, space, and incredible potential. The 4-bedroom, 3-bathroom residence features 11-foot ceilings, a dedicated laundry room, a 2-car garage, and endless opportunity to design your dream retreat. Benefit from a brand-new tile roof installed in 2025 and two newer A/C units. The expansive backyard provides ample room for entertaining, expansion, or creating a true outdoor oasis. This is the perfect opportunity to secure your forever family home with solid fundamentals and unlimited upside in one of South Florida’s most desirable neighborhoods.
#A11976147

Palmetto Bay

14040 SW 83rd Ct

4 Beds

3 Baths

3,194 Sq.Ft.

$1,500,000

MLS#: A11976147

Fantastic, warm and welcoming, 5 bedroom/ 4 bath home in North Palmetto Bay. Open formal living room and dining room. Cozy family room connects to the updated kitchen with adjacent breakfast nook overlooking the pool. Spacious primary suite, bath with dual sinks, glass enclosed shower and built-in storage cabinetry. Ample-sized guest bedrooms. Separate ensuite guest bedroom perfect for an office or playroom. Some highlights include a metal roof, impact windows/doors, plantation shutters, and excellent storage closets. Fenced backyard with a variety of trees, screened pool, partially covered marble tile patio. Plus, a new hot tub to enjoy some relaxation under the stars. 1 car side entry garage, paver driveway. Located just blocks from Coral Reef Park, excellent schools.
#A11976276

Palmetto Bay

15401 SW 81 Av

5 Beds

4 Baths

2,713 Sq.Ft.

$1,575,000

MLS#: A11976276

Located in Mangowood, this updated single-story home offers 2,525 square feet with five bedrooms and three full baths. The roof was replaced in 2023, and major improvements in 2024 include a remodeled kitchen and baths, new flooring, impact windows, and two new A/C systems. Smart thermostats were added in 2025, followed by a larger water heater and upgraded electrical panel in 2026. The layout provides clear sightlines across the living areas and opens to a pool, garden, and spacious terrace ideal for outdoor meals. Generous closets, two storage rooms, and ample parking add everyday ease, all near schools, shopping, and fitness options. Mortgage savings may be available for buyers of this listing.
#A11972210

Palmetto Bay

8201 SW 151st St

5 Beds

3 Baths

2,525 Sq.Ft.

$1,599,000

MLS#: A11972210

Welcome to Palmetto Bay bliss among the oak trees at Casa Roble! Tucked away on a private cul-de-sac, this beautifully updated two-story home offers the space, setting, and lifestyle you are looking for. The location is peaceful and perfect for enjoying the outdoors while remaining close to everything. Built in 1995, this 5BD/3BA residence features a functional layout with 4BD/2BA upstairs and 1BD/1BA downstairs, ideal for guests or a home office. The spacious living and dining rooms flow into an open kitchen and family room overlooking the pool and patio, creating the perfect setup for everyday living and entertaining. The eat-in kitchen features quartz countertops and ample prep space. Step outside to a private, oversized backyard shaded by magnificent oak trees. There’s plenty of room to roam, space for a boat, and a screened-in pool for indoor/outdoor Florida living year-round. Upstairs, the primary suite offers two walk-in closets and a beautifully updated bath with dual vanities, a separate shower, and a freestanding soaking tub. Additional highlights include PVC plumbing, a 10-year-old roof, two A/C units, mixed impact protection, and an EV charger. Play in the backyard and cul-de-sac, or hop on bordering paths, steps away from Coral Reef Park, Deering Estate, & top-rated public/private schools. Privacy, space, and an exceptional backyard, all in a premier cul-de-sac setting. Who is ready to call this peaceful, sought-after neighborhood and house, HOME?
#A11972987

Palmetto Bay

16085 SW 84th Pl

5 Beds

3 Baths

3,102 Sq.Ft.

$1,890,000

MLS#: A11972987

 - property

Send a message

Message successfully sent.

Your message

What is 3 + 4 ?

Reason for contacting?

Sign Out

Virtual Assistant

Would you like to take the next step with this property? We can help you schedule a showing or virtual tour, or send you more details.

Yes, I would like more information.

Thank You for Your Reply, One of Our Agents will contact you as soon as possible

No, maybe later.

Thank you, you can always contact me via email, phone number or through the contact form.

Realhub AI

Lucy - Your AI-Powered Realtor

Update Your Temporary Password

Personalize your search

Enter your email and we'll notify you immediately when new listings match what you're looking for.

or enter email address

Already have an account ? Login here

Continue your home search

Already have an account ? Login here

We use cookies

We use cookies primarily for analytics to enhance your experience. By accepting, you agree to our use of these cookies. You can manage your preferences or learn more about our cookies policy.