
- Properties
- Meet our team
-
Communities
- Fort Lauderdale
- Miami
- Boca Raton and Delray Beach
- Golden Beach: A Secluded Coastal Gem with Unmatched Luxury
- The Palm Beaches
- Commercial Real Estate
- Croissant Park
- Tarpon River
- Rio Vista
- Las Olas Isles
- Victoria Park
- Riverside Park
- Sailboat Bend
- Idlewyld
- Harbour Inlet and Harbour Isles
- Edgewood
- River Oaks
- Coral Ridge
- Market Report
- Home Value
Property
Beds
1
Full Baths
1
1/2 Baths
None
Year Built
1985
Sq.Footage
550
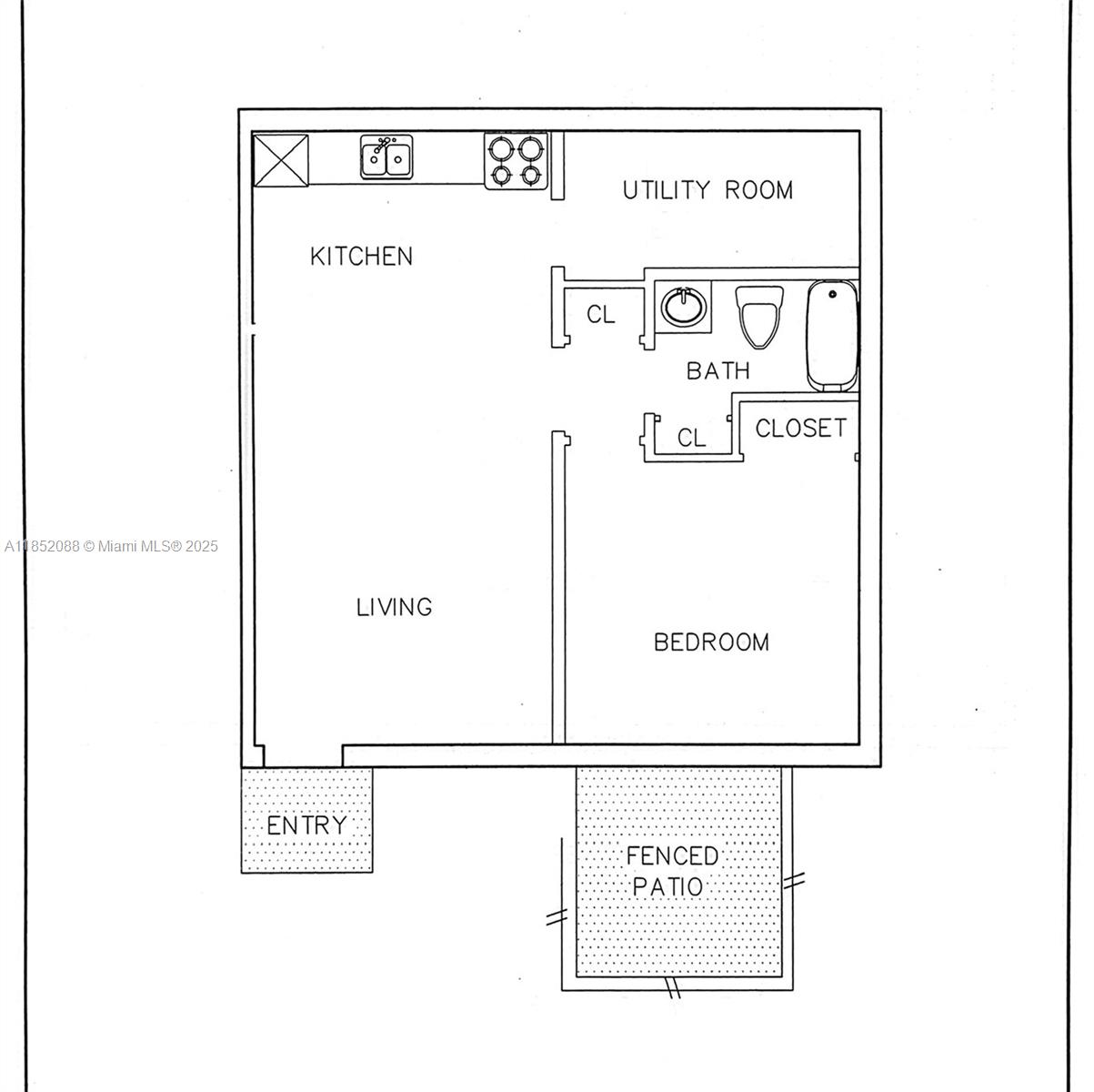
Corner 1+1 villa in nice community located close to Turnpike, I-95, FtLaud Executive Airport. Open kitchen, ample laundry room, porch w nice landscaped view. Full size Washer&Dryer inside, new AC unit, freshly painted, ceramic tiled floors and laminate, blinds on every window. Beautiful property, ready to move-in !! Easy to show. :: Recorded video tour is available::. --Move in funds required: 3months (1st month + 2mo security deposit, no last month). --Applicant/s requirements: picture ID, CS 650+, credit & background report, proof of income (3mo paystubs, 3mo bank statements), rental application form (find it attached).Equal Housing Opportunity.
Features & Amenities
Interior
-
Total Bedrooms
1
-
Bathrooms
1
-
Cooling YN
YES
-
Cooling
Central Air
-
Pet friendly
No
Exterior
-
Garage
Yes
-
Garage spaces
1
-
Parking
Detached, Garage, Guest, Unassigned
-
Patio and Porch Features
Porch
-
Pool
Yes
-
Pool Features
None
-
View
Other
Area & Lot
-
Property Type
Residential Lease
Price
-
Sales Price
$1,670
-
Sq. Footage
550
-
Price/SqFt
$3
HOA
-
Association
No
School District
-
Elementary School
N/A
-
Middle School
N/A
-
High School
N/A
Property Features
-
Senior Community YN
NO
-
Water Source
Public
Schedule a Showing
Showing scheduled successfully.
Mortgage calculator
Estimate your monthly mortgage payment, including the principal and interest, property taxes, and HOA. Adjust the values to generate a more accurate rate.
Your payment
Principal and Interest:
$
Property taxes:
$
HOA fees:
$
Total loan payment:
$
Total interest amount:
$
Location
County
Broward
Elementary School
Middle School
High School
Listing Courtesy of Luz Bencich , Grand Realty of America, Corp.
RealHub Information is provided exclusively for consumers' personal, non-commercial use, and it may not be used for any purpose other than to identify prospective properties consumers may be interested in purchasing. All information deemed reliable but not guaranteed and should be independently verified. All properties are subject to prior sale, change or withdrawal. RealHub website owner shall not be responsible for any typographical errors, misinformation, misprints and shall be held totally harmless.

Realtor
JarrodGaylis
Call Jarrod today to schedule a private showing.

* Listings on this website come from the FMLS IDX Compilation and may be held by brokerage firms other than the owner of this website. The listing brokerage is identified in any listing details. Information is deemed reliable but is not guaranteed. If you believe any FMLS listing contains material that infringes your copyrighted work please click here to review our DMCA policy and learn how to submit a takedown request.© 2024 FMLS.
