- Properties
 - Meet our team
 - 
                    
                        Communities
                    
                    
                    
- Fort Lauderdale
 - Miami
 - Boca Raton and Delray Beach
 - Golden Beach: A Secluded Coastal Gem with Unmatched Luxury
 - The Palm Beaches
 - Commercial Real Estate
 - Croissant Park
 - Tarpon River
 - Rio Vista
 - Las Olas Isles
 - Victoria Park
 - Riverside Park
 - Sailboat Bend
 - Idlewyld
 - Harbour Inlet and Harbour Isles
 - Edgewood
 - River Oaks
 - Coral Ridge
 
 - Market Report
 - Home Value
 
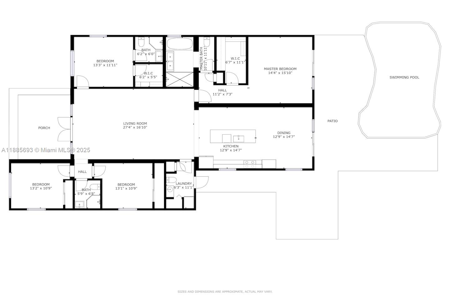
Property
Beds
4
Full Baths
3
1/2 Baths
1
Year Built
1955
Sq.Footage
2,120
Stunning turnkey pool home completely rebuilt in 2017 —everything redone from the ground up! Features include all new framing, PVC sewer system, updated underground electrical service, 2 new AC systems with new ductwork, hurricane-impact windows/doors, a new roof, and modern finishes throughout. The sleek designer kitchen flows into spacious living and dining areas, perfect for entertaining. Outdoor oasis features heated pool, paver patio, and fenced yard.
Features & Amenities
Interior
- 
    
Other Interior Features
Master Downstairs
 - 
    
Total Bedrooms
4
 - 
    
Bathrooms
3
 - 
    
1/2 Bathrooms
1
 - 
    
Cooling YN
YES
 - 
    
Cooling
Central Air, Ceiling Fan(s)
 - 
    
Heating YN
YES
 - 
    
Heating
Central
 - 
    
Pet friendly
Yes
 
Exterior
- 
    
Garage
Yes
 - 
    
Garage spaces
4
 - 
    
Construction Materials
Block
 - 
    
Other Exterior Features
Barbecue
 - 
    
Parking
Attached, Circular Driveway, Garage
 - 
    
Patio and Porch Features
Patio
 - 
    
Pool
Yes
 - 
    
Pool Features
Heated, In Ground
 - 
    
Waterfront YN
NO
 - 
    
View
None, Pool
 
Area & Lot
- 
    
Lot Features
Rectangular Lot
 - 
    
Property Type
Residential Lease
 - 
    
Property Sub Type
Single Family Residence
 
Price
- 
    
Sales Price
$7,500
 - 
    
Zoning
RS-6
 - 
    
Sq. Footage
2, 120
 - 
    
Price/SqFt
$3
 
HOA
- 
    
Association
No
 
School District
- 
    
Elementary School
N/A
 - 
    
Middle School
N/A
 - 
    
High School
N/A
 
Property Features
- 
    
Senior Community YN
NO
 - 
    
Water Source
Public
 
Schedule a Showing
Showing scheduled successfully.
Mortgage calculator
Estimate your monthly mortgage payment, including the principal and interest, property taxes, and HOA. Adjust the values to generate a more accurate rate.
Your payment
Principal and Interest:
$
Property taxes:
$
HOA fees:
$
Total loan payment:
$
Total interest amount:
$
Location
County
Broward
Elementary School
Middle School
High School
Listing Courtesy of Natalie Abadi PA , Keller Williams Elite Properties
RealHub Information is provided exclusively for consumers' personal, non-commercial use, and it may not be used for any purpose other than to identify prospective properties consumers may be interested in purchasing. All information deemed reliable but not guaranteed and should be independently verified. All properties are subject to prior sale, change or withdrawal. RealHub website owner shall not be responsible for any typographical errors, misinformation, misprints and shall be held totally harmless.
                Realtor
JarrodGaylis
Call Jarrod today to schedule a private showing.
        * Listings on this website come from the FMLS IDX Compilation and may be held by brokerage firms other than the owner of this website. The listing brokerage is identified in any listing details. Information is deemed reliable but is not guaranteed. If you believe any FMLS listing contains material that infringes your copyrighted work please click here to review our DMCA policy and learn how to submit a takedown request.© 2024 FMLS.