
- Properties
- Meet our team
-
Communities
- Fort Lauderdale
- Miami
- Boca Raton and Delray Beach
- Golden Beach: A Secluded Coastal Gem with Unmatched Luxury
- The Palm Beaches
- Commercial Real Estate
- Croissant Park
- Tarpon River
- Rio Vista
- Las Olas Isles
- Victoria Park
- Riverside Park
- Sailboat Bend
- Idlewyld
- Harbour Inlet and Harbour Isles
- Edgewood
- River Oaks
- Coral Ridge
- Market Report
- Home Value
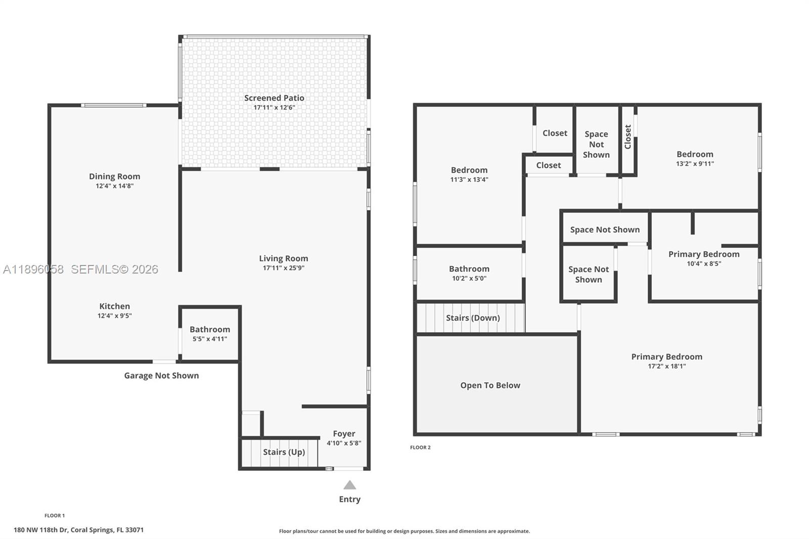
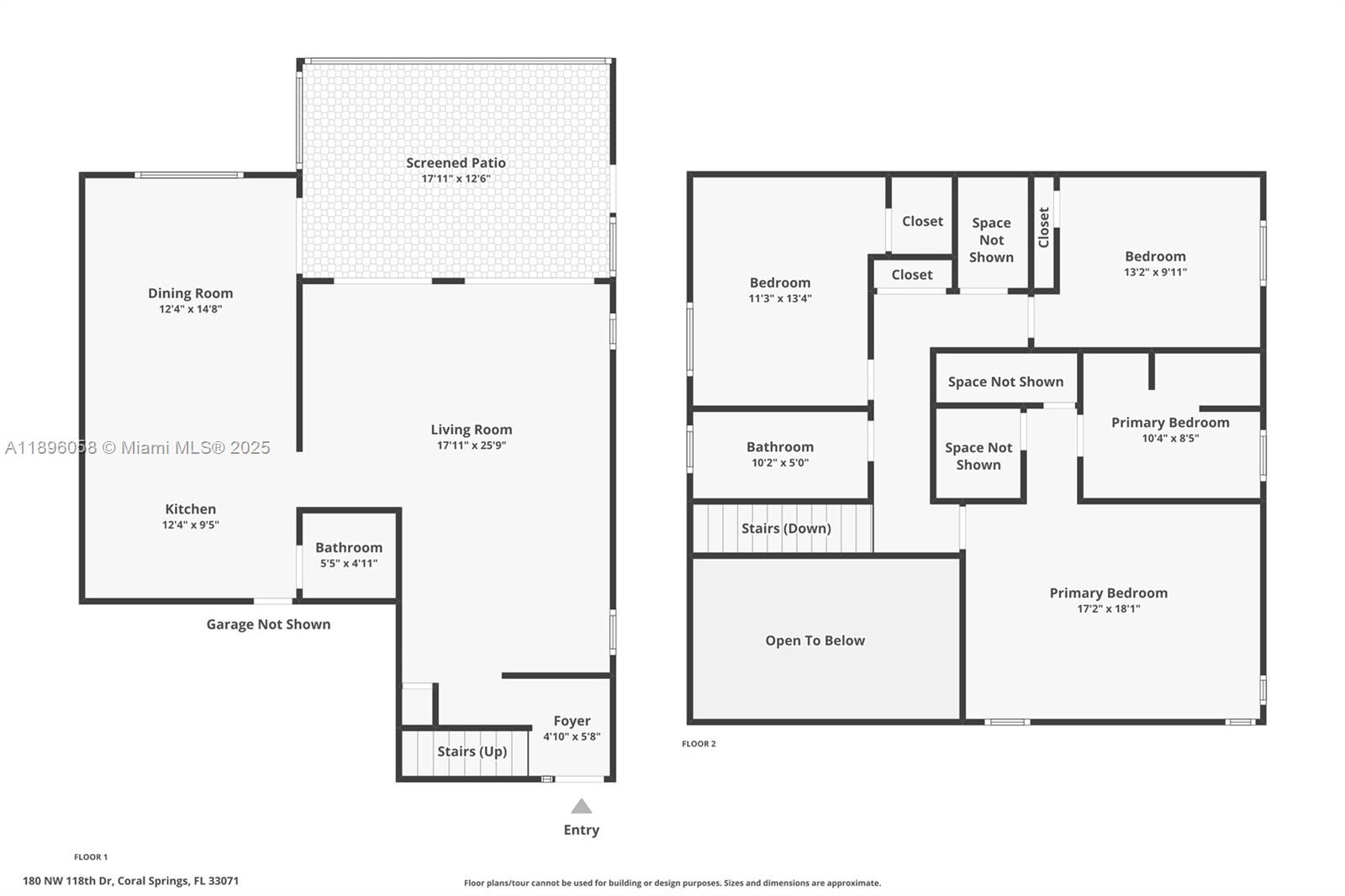
Property
Beds
3
Full Baths
2
1/2 Baths
1
Year Built
1993
Sq.Footage
1,738
Beautifully updated lakefront single-family home featuring 3 bedrooms and 2.5 baths. As you step inside, you'll find high ceilings that create an open, airy feel throughout the entry and sitting room. Enjoy an expanded kitchen with solid wood cabinetry and stone countertops, plus luxury vinyl flooring throughout. No carpet. The screened patio offers serene water views, perfect for relaxing or entertaining. Located within walking distance to the community pool and in close proximity to A-rated schools, parks, and places of worship. The HOA covers exterior lawn care, exterior paintings, mailboxes, and all common areas. Priced to sell quickly! Pre-listing 4-point inspection completed and passed!
Features & Amenities
Interior
-
Other Interior Features
Entrance Foyer, Pantry, Vaulted Ceiling(s), Walk-In Closet(s)
-
Total Bedrooms
3
-
Bathrooms
2
-
1/2 Bathrooms
1
-
Cooling YN
YES
-
Cooling
Central Air
-
Heating YN
YES
-
Heating
Central
-
Pet friendly
Dogs OK, Yes
Exterior
-
Garage
Yes
-
Garage spaces
2
-
Construction Materials
Block
-
Other Exterior Features
Other
-
Parking
Attached, Driveway, Garage, Guest, Other
-
Patio and Porch Features
Patio, Porch, Screened
-
Pool
Yes
-
Pool Features
None, Community
-
Waterfront YN
YES
-
View
Canal, Garden, Other
Area & Lot
-
Lot Features
Waterfront
-
Property Type
Residential
-
Property Sub Type
Single Family Residence
-
Architectural Style
TwoStory
Price
-
Sales Price
$565,000
-
Tax Amount
9732.0
-
Zoning
RM-15
-
Sq. Footage
1, 738
-
Price/SqFt
$325
HOA
-
Association
YES
-
Association Fee
$150
-
Association Fee Frequency
Monthly
-
Association Fee Includes
N/A
School District
-
Elementary School
Riverside
-
Middle School
Ramblewood Middle
-
High School
N/A
Property Features
-
Stories
2
-
Senior Community YN
NO
-
Sewer
Public Sewer
-
Water Source
Public
Schedule a Showing
Showing scheduled successfully.
Mortgage calculator
Estimate your monthly mortgage payment, including the principal and interest, property taxes, and HOA. Adjust the values to generate a more accurate rate.
Your payment
Principal and Interest:
$
Property taxes:
$
HOA fees:
$
Total loan payment:
$
Total interest amount:
$
Location
County
Broward
Elementary School
Riverside
Middle School
Ramblewood Middle
High School
Listing Courtesy of Daniela Rivera , Luxe Properties
RealHub Information is provided exclusively for consumers' personal, non-commercial use, and it may not be used for any purpose other than to identify prospective properties consumers may be interested in purchasing. All information deemed reliable but not guaranteed and should be independently verified. All properties are subject to prior sale, change or withdrawal. RealHub website owner shall not be responsible for any typographical errors, misinformation, misprints and shall be held totally harmless.

Realtor
JarrodGaylis
Call Jarrod today to schedule a private showing.

* Listings on this website come from the FMLS IDX Compilation and may be held by brokerage firms other than the owner of this website. The listing brokerage is identified in any listing details. Information is deemed reliable but is not guaranteed. If you believe any FMLS listing contains material that infringes your copyrighted work please click here to review our DMCA policy and learn how to submit a takedown request.© 2024 FMLS.
