- Properties
- Meet our team
-
Communities
- Fort Lauderdale
- Miami
- Boca Raton and Delray Beach
- Golden Beach: A Secluded Coastal Gem with Unmatched Luxury
- The Palm Beaches
- Commercial Real Estate
- Croissant Park
- Tarpon River
- Rio Vista
- Las Olas Isles
- Victoria Park
- Riverside Park
- Sailboat Bend
- Idlewyld
- Harbour Inlet and Harbour Isles
- Edgewood
- River Oaks
- Coral Ridge
- Market Report
- Home Value
Property
Beds
3
Full Baths
2
1/2 Baths
None
Year Built
1960
Sq.Footage
1,991
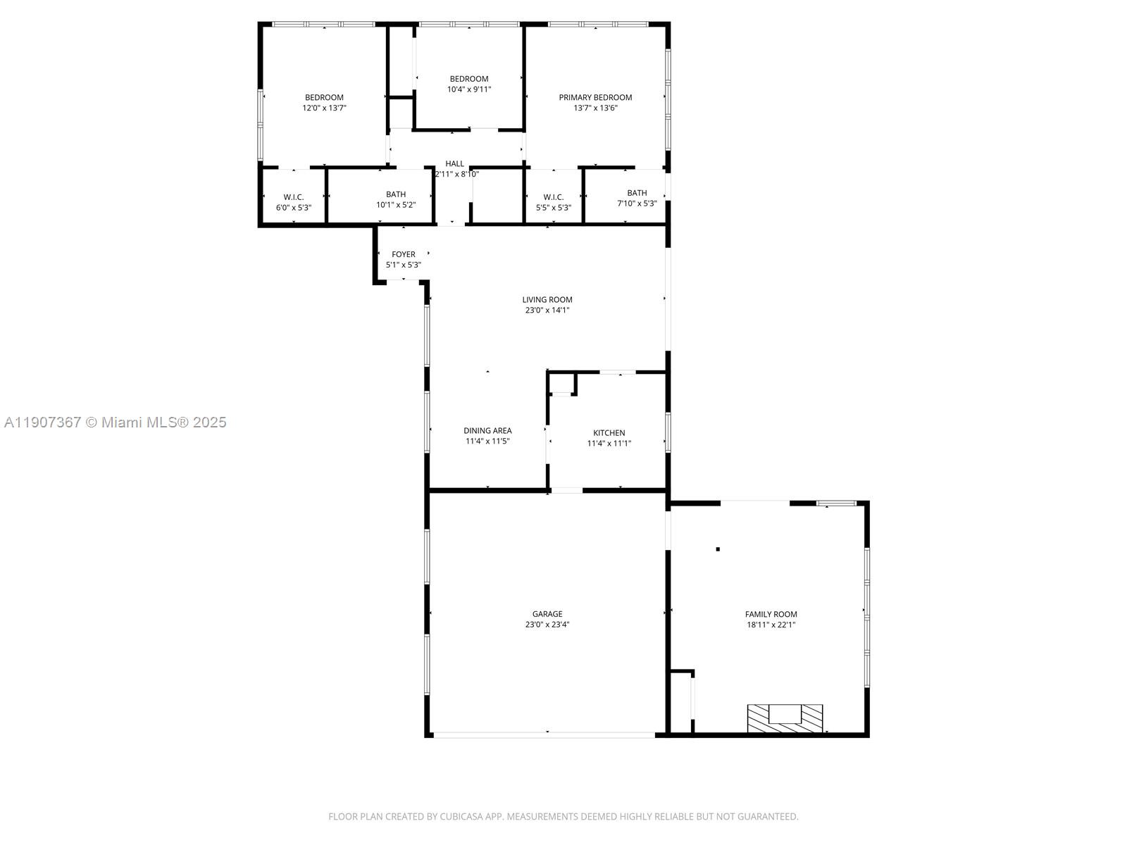
Charming Palmetto Bay home with tons of potential, ready for your renovations! Offering 3 bedrooms, 2 baths, plus a versatile room with fireplace and bar, off the pool area. Situated on a spacious, wooded corner lot, this home features a welcoming foyer entry, formal living and dining rooms. Impact windows and hurricane shutters for extra protection. Expansive screened patio and pool. 2 car carport plus 2 car garage and generator.
Features & Amenities
Interior
-
Other Interior Features
Entrance Foyer, Walk-In Closet(s), Master Downstairs
-
Total Bedrooms
3
-
Bathrooms
2
-
Cooling YN
YES
-
Cooling
Central Air, Electric, Wall/Window Unit(s)
-
Fireplace YN
YES
-
Heating YN
YES
-
Heating
Central, Electric
-
Pet friendly
Yes
Exterior
-
Garage
Yes
-
Garage spaces
2
-
Construction Materials
Block
-
Parking
Attached, Driveway, Garage
-
Patio and Porch Features
Porch, Screened
-
Pool
Yes
-
Pool Features
In Ground
-
Waterfront YN
NO
-
View
Pool
Area & Lot
-
Lot Features
Corner Lot
-
Property Type
Residential
-
Property Sub Type
Single Family Residence
-
Architectural Style
Detached, OneStory
Price
-
Sales Price
$950,000
-
Tax Amount
4412.0
-
Zoning
2100
-
Sq. Footage
1, 991
-
Price/SqFt
$477
HOA
-
Association
No
School District
-
Elementary School
Coral Reef
-
Middle School
Southwood
-
High School
Miami Palmetto
Property Features
-
Stories
1
-
Senior Community YN
NO
-
Sewer
Septic Tank
-
Water Source
Public
Schedule a Showing
Showing scheduled successfully.
Mortgage calculator
Estimate your monthly mortgage payment, including the principal and interest, property taxes, and HOA. Adjust the values to generate a more accurate rate.
Your payment
Principal and Interest:
$
Property taxes:
$
HOA fees:
$
Total loan payment:
$
Total interest amount:
$
Location
County
Miami-Dade
Elementary School
Coral Reef
Middle School
Southwood
High School
Miami Palmetto
Listing Courtesy of Drew Kern , BHHS EWM Realty
RealHub Information is provided exclusively for consumers' personal, non-commercial use, and it may not be used for any purpose other than to identify prospective properties consumers may be interested in purchasing. All information deemed reliable but not guaranteed and should be independently verified. All properties are subject to prior sale, change or withdrawal. RealHub website owner shall not be responsible for any typographical errors, misinformation, misprints and shall be held totally harmless.
Realtor
JarrodGaylis
Call Jarrod today to schedule a private showing.
* Listings on this website come from the FMLS IDX Compilation and may be held by brokerage firms other than the owner of this website. The listing brokerage is identified in any listing details. Information is deemed reliable but is not guaranteed. If you believe any FMLS listing contains material that infringes your copyrighted work please click here to review our DMCA policy and learn how to submit a takedown request.© 2024 FMLS.