- Properties
- Meet our team
-
Communities
- Fort Lauderdale
- Miami
- Boca Raton and Delray Beach
- Golden Beach: A Secluded Coastal Gem with Unmatched Luxury
- The Palm Beaches
- Commercial Real Estate
- Croissant Park
- Tarpon River
- Rio Vista
- Las Olas Isles
- Victoria Park
- Riverside Park
- Sailboat Bend
- Idlewyld
- Harbour Inlet and Harbour Isles
- Edgewood
- River Oaks
- Coral Ridge
- Market Report
- Home Value
Property
Beds
4
Full Baths
3
1/2 Baths
None
Year Built
1999
Sq.Footage
2,444
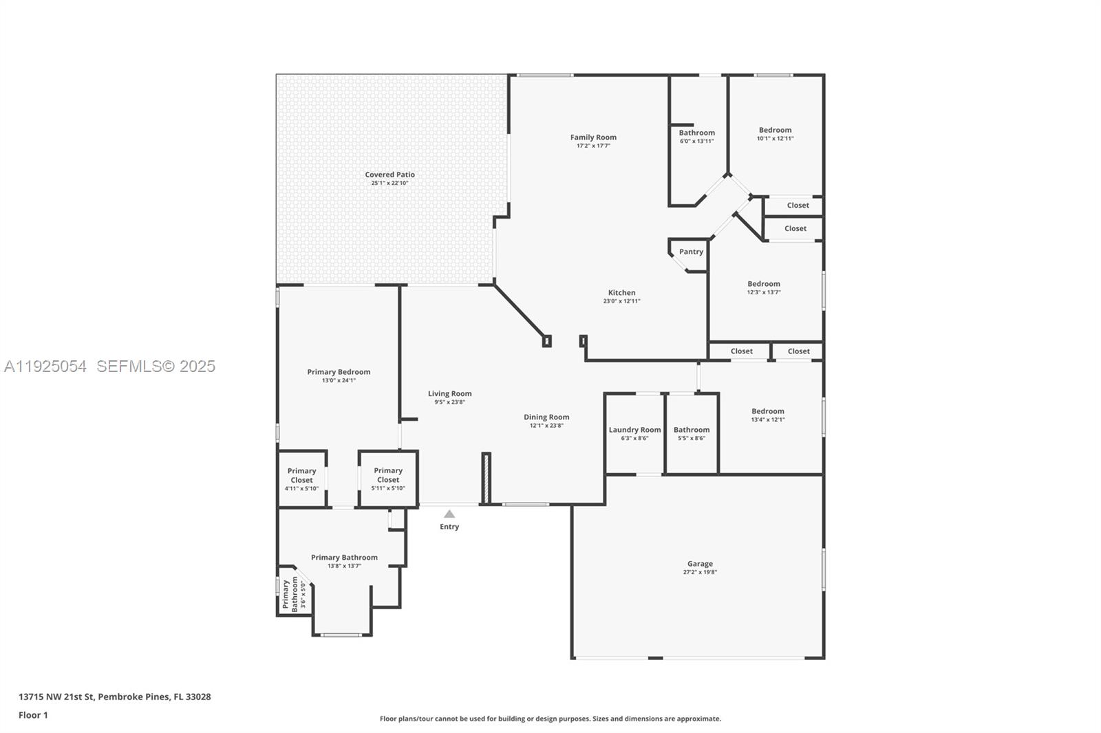
YOUR WAIT IS OVER..... 4 Bedroom, 3 Bath, 3 Car Garage ***YALE MODEL - POOL HOME*** in Sought After EDGEWATER at PEMBROKE FALLS. Features an Open Floorplan, Kitchen w/Granite Countertops, Stainless Steel Appliances, Gas Range, Island/Serving Bar, Spacious Master Suite, His & Her's Walk-in Closets, Spa Style Bath, Dual Floating Vanities, Frameless Glass Shower Enclosure, Large Soaking Tub, Generous Guest Rooms, Freshly Painted Interior & Exterior, Modern LED Lighting ***NEW DESIGNER PLANK FLOORING THROUGHOUT*** Recently Renovated Expansive Covered Patio w/Retractable Awning ***REFRESHING POOL & SPA****NEW 2025 A/C***2023 W/H*** Accordion Shutters, Fenced Grounds, and Wide Multi-Car Driveway. Resort Style Club House: Heated Pool & Spa, Fitness Rooms, Tennis, Pickleball, Basketball, Ballroom, Children's Playgrounds & Four 24HR Manned Security Entrances. HOA Includes Cable, Internet & Alarm. Convenient to Shopping, Dining, Entertainment, Travel, TOP RATED SCHOOLS, and more. ***FIVE YEAR ROOF CERTIFICATION ATTACHED***
Features & Amenities
Interior
-
Other Interior Features
Breakfast Bar, Kitchen Island, Pantry, Walk-In Closet(s)
-
Total Bedrooms
4
-
Bathrooms
3
-
Cooling YN
YES
-
Cooling
Central Air
-
Heating YN
YES
-
Heating
Central
-
Pet friendly
Yes
Exterior
-
Garage
Yes
-
Garage spaces
3
-
Construction Materials
Block
-
Other Exterior Features
Awning(s)
-
Parking
Attached, Driveway, Garage, Paver Block, Garage Door Opener
-
Patio and Porch Features
Patio, Porch
-
Pool
Yes
-
Pool Features
Gunite, In Ground, Community
-
Waterfront YN
NO
-
View
Pool
Area & Lot
-
Property Type
Residential
-
Property Sub Type
Single Family Residence
-
Architectural Style
Detached, OneStory
Price
-
Sales Price
$885,000
-
Tax Amount
9652.0
-
Zoning
(PUD)
-
Sq. Footage
2, 444
-
Price/SqFt
$362
HOA
-
Association
Yes
-
Association Fee
$375
-
Association Fee Frequency
Monthly
-
Association Fee Includes
N/A
School District
-
Elementary School
Lakeside
-
Middle School
Walter C. Young
-
High School
Flanagan;Charls
Property Features
-
Stories
1
-
Senior Community YN
NO
-
Sewer
Public Sewer
-
Water Source
Public
Schedule a Showing
Showing scheduled successfully.
Mortgage calculator
Estimate your monthly mortgage payment, including the principal and interest, property taxes, and HOA. Adjust the values to generate a more accurate rate.
Your payment
Principal and Interest:
$
Property taxes:
$
HOA fees:
$
Total loan payment:
$
Total interest amount:
$
Location
County
Broward
Elementary School
Lakeside
Middle School
Walter C. Young
High School
Flanagan;Charls
Listing Courtesy of Claudia Willard , Willard Realty Team Corp
RealHub Information is provided exclusively for consumers' personal, non-commercial use, and it may not be used for any purpose other than to identify prospective properties consumers may be interested in purchasing. All information deemed reliable but not guaranteed and should be independently verified. All properties are subject to prior sale, change or withdrawal. RealHub website owner shall not be responsible for any typographical errors, misinformation, misprints and shall be held totally harmless.
Realtor
JarrodGaylis
Call Jarrod today to schedule a private showing.
* Listings on this website come from the FMLS IDX Compilation and may be held by brokerage firms other than the owner of this website. The listing brokerage is identified in any listing details. Information is deemed reliable but is not guaranteed. If you believe any FMLS listing contains material that infringes your copyrighted work please click here to review our DMCA policy and learn how to submit a takedown request.© 2024 FMLS.